鋼製傳統走入型排煙櫃(1)
(Steel Traditional Walk-In Fume Hood)
本設備為鋼製傳統走入型排煙櫃,專為大型設備操作或站立式作業流程所設計,具備寬敞的內部空間與穩定的排氣功能。櫃體結構採用高強度鋼板搭配耐化學粉體烤漆塗裝,適合重負荷實驗條件與腐蝕性氣體操作環境。
產品特性說明
- 堅固鋼製結構
櫃體以高品質鋼板打造,表面施以粉體烤漆塗層,具備優異的抗化學性、抗磨損與抗撞擊能力,耐用性強,適合長期高強度使用。 - 走入式操作空間
提供可站立進入的開放式操作空間,適合擺放大型儀器(如反應器、蒸餾裝置、過濾設備等),支援使用者在櫃內進行站立式操作與維護。 - 多段式滑動視窗
正面配置透明視窗與多段式滑軌設計,可依作業需求調整高度,有效隔離內部氣體與提升操作便利性與視野。 - 標準排風結構
採用傳統後抽式排氣系統與背部導流設計,能穩定排除櫃內所產生之有害氣體與氣溶膠,維持實驗環境之負壓與空氣品質。 - 內部多點進氣設計
背板配置多組進氣孔與導引氣道,提升氣流流動效率,有助於污染物快速被導出,避免滯留。 - 整合操作面板與照明系統
側邊設置操作面板,具備基本電源控制、風扇啟動、照明開關等功能,提升使用便利性。 - 智慧型人機介面系統(選配)
配備觸控式顯示螢幕與感測模組,操作直覺、管理高效,支援多項智慧功能:- 即時風速顯示,低風速警報,VAV 節能風速設定
- 低風速警報
- 緊急排風功能
應用範圍
本鋼製傳統走入型排煙櫃廣泛應用於:
- 化學品反應設備操作區
- 高腐蝕性氣體處理站
- 生技與製藥廠中試作業區
- 半導體與材料實驗空間
- 須擺放大型實驗裝置與進入式操作的環境
結合大空間、穩定排風與堅固結構的設計,為需要操作空間與高防護的實驗場域提供安全可靠的通風解決方案。
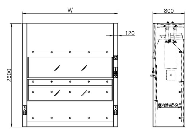
| 設備尺寸(mm) | 1500wx800dx2350h | 1800wx800dx2350h | 2400wx800dx2350h |
| 作業尺寸(mm) | 1260w*595d | 1560w*595d | 2160w*595d |
| 出風口 | 10" | 10" | 8" *2 |
| 設置高度(mm) | 2600h | ||
| 開口風速(m/s) | 0.5 | ||
| 風量需求(cmm) | 32 | 39 | 54 |
*尺寸皆可依需求設計製作
| 外殼 | 厚1.2mm鍍鋅鋼板,Epoxy靜電粉體烤漆 |
| 內罩 | 厚6mm抗蝕實心化學板 |
| 台面板 | 厚13mm±3%抗蝕實心化學板(可耐王水等級) |
| 視窗 | 厚6mm強化玻璃、圓弧造型PVC成型把手 |
| 照明 | LED日光燈具組及5mm強化玻璃、燈罩,與櫃內櫃外隔離 |
| 電器插座 | AC 110V-15A 插座2組、AC 220V-20A插座1組 |
| 底座 | 厚1.2mm鍍鋅鋼板,Epoxy靜電粉體烤漆、4分螺桿耐重調整腳 |
| 控制面板 | 設有風車馬達開關、日光燈開關、預留開關 |
| 壓差表 | 即時監控氣流 |
| 選配功能 | 即時風速顯示,低風速警報,VAV 節能風速設定 |
*本商品不含動力排氣裝置











