SUS 清洗櫃(1)
本 SUS 清洗櫃專為實驗室器皿清洗、化學前處理及高強度清洗作業所設計,整體採用高品質不鏽鋼(SUS)材質製作,具備良好的結構強度、耐用性與易清潔特性。設備整合高耐化學給水與清洗配置、後背可調式抽氣系統,並搭配完善的操作與警示控制開關,適用於需兼顧清洗效率、環境安全與設備穩定度之實驗室場域。
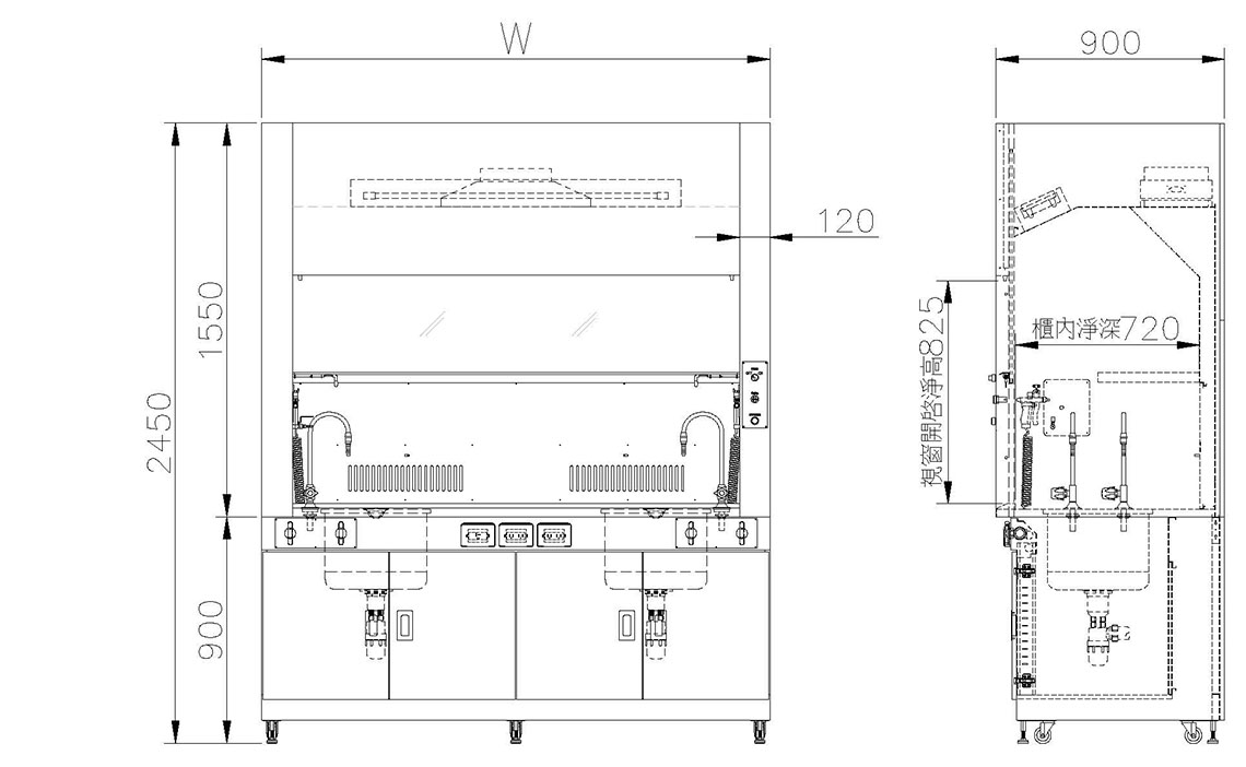
產品特性說明
- SUS 不鏽鋼結構設計
櫃體、內襯與清洗作業區採用不鏽鋼(SUS)材質製作,結構穩固、耐磨耗,表面易清潔,適合高頻率清洗與長時間使用。 - PVDF 單口鵝頸龍頭(附手動控制閥)
配置高耐化學性 PVDF 單口鵝頸式龍頭,並附手動控制閥,可精準控制出水量,適用於純水或超純水清洗作業,有效避免金屬離子污染。 - PP 水槍配置
搭配 PP 材質水槍,適合進行局部沖洗與高流量清洗操作,耐化學性佳,提升整體清洗效率與操作彈性。 - 後背可調式抽氣設計
清洗區後背設有可調式抽氣結構,可依實際作業需求調整抽氣量與氣流方向,協助排除清洗過程中產生的揮發性化學氣體與異味,降低污染物滯留風險。 - 整合式清洗作業空間
清洗區採一體化設計,搭配完善排水結構,減少液體殘留,清潔與日常維護更加便利。 - 日光燈照明與獨立開關
內建日光燈照明,並配置獨立開關控制,確保清洗作業區光線充足,提升操作視野與精準度。 - 蜂鳴器開關
設有蜂鳴器控制開關,可依使用需求啟用或關閉聲音提示功能,協助操作人員即時掌握設備狀態。 - 警示器開關
配置警示器控制開關,搭配設備狀態提示機制,強化操作安全與現場管理效率。 - 下方收納櫃體設計
底部設有不鏽鋼收納櫃體,可存放清洗用品、管線或實驗耗材,提升實驗室空間利用率。 - 行動式櫃體結構
櫃體下方配置耐重腳輪並附煞車功能,方便設備移動與定位,符合實驗室彈性配置需求。
應用範圍
- 化學實驗室器皿清洗與前處理作業
- 生技、製藥與醫檢實驗室
- 半導體、電子材料及製程實驗室
- 大專院校與研究機構
- 需高強度清洗、可調抽氣與完善安全警示之作業環境
| 設備尺寸(mm) | 1500wx800dx2350h | 1800wx800dx2350h | 2000wx900dx2450h |
| 作業尺寸(mm) | 1260w*580d | 1560w*580d | 1760w*580d |
| 出風口 | 10" | 10" | 10" |
| 設置高度(mm) | 2600h | ||
| 開口風速(m/s) | 0.5 | ||
| 風量需求(cmm) | 14 | 17 | 19 |
*尺寸皆可依需求設計製作
| 外殼 | 厚1.2mm-SUS#304亮面 |
| 內罩 | 厚1.2mm-SUS#304亮面 |
| 台面板 | 厚1.2mm-SUS#304亮面 ( 內襯夾板補強 ) |
| 視窗 | 厚6mm強化玻璃、SUS成型把手 |
| 照明 | LED日光燈具組及5mm強化玻璃均光板、燈罩,與櫃內櫃外隔離 |
| 五金配件 | 緩衝鉸鍊、內凹把手、2-1/2"平盤活動PP輪附調整腳 |
| 龍頭 | 依需求配置PVDF單口鵝頸龍頭 ( 附手動控制閥 )、PP水槍附掛勾、PFA伸縮管件 |
| 水槽 | 厚1.2mm-SUS#304亮面水槽400w*400d*300h ( 附水槽蓋 ) |
| 電器插座 | AC 110V-15A 插座2組、AC 220V-20A插座1組、附防塵蓋 |
| 控制面板 | 設有日光燈開關、蜂鳴器開關、警示器開關 |
*本商品不含動力排氣裝置















