中央實驗水槽桌/桌上型鋼製藥架-鋼吊鋼-4380x1520x825/2350 mm
中央型實驗桌(7)
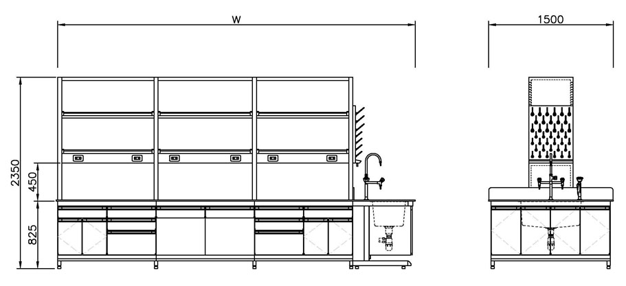
產品特性說明
- 鋼構主架設計:實驗桌採用堅固鋼構主架,搭配鋼製懸吊式下櫃,整體結構穩固,承重力強。
- 高耐蝕工作台面:桌面採用實心抗蝕化學板,具備卓越的耐酸鹼性能,可耐王水等強腐蝕性試劑。
- 模組化懸吊櫃:下方櫃體採懸吊式設計,可依需求靈活更換為抽屜櫃、門櫃、坐位空間或留空,方便設備安裝與清潔。
- 整體式藥品層架:上方藥架為透通型藥架,雙邊中央桌共用同一層藥品架,可以讓實驗桌的立體空間增大
- 實用水槽配置:側邊設置水槽、滴水架及龍頭組,可滿足日常沖洗與實驗清潔需求。
- 電源介面預留:藥架下緣配置多組插座,方便連接各式實驗儀器,提高操作效率與便利性。
應用範圍
- 化學、材料、環工等需高抗腐蝕作業的實驗室。
- 藥品分析、研發與品質控管等實驗場域。
- 醫學、生技及微生物相關研究空間。
- 教學型理工實驗室與研究型單位。
- 有高儲物彈性與設備整合需求之實驗環境。
| 桌寬(mm) | 2400 | 3000 | 3600 | 4350 |
| 桌深(mm) | 1200/1500 | |||
| 桌高(mm) | 825/885(±3%) | |||
| 總高(mm) | 2200/2400 | |||
*尺寸皆可依需求設計製作
| 鋼骨架構 | 60*40*2.3mm 鋼管焊接成型鐵腳,Epoxy 靜電粉體烤漆 |
| 櫃體 | 厚0.8、1.0mm鍍鋅鋼板機製成型,Epoxy 靜電粉體烤漆 |
| 桌上型藥架 | 厚1.2mm 鍍鋅鋼板機製成型,Epoxy 靜電粉體烤漆 |
| 台面板 | 厚13mm±3%抗蝕實心化學板(可耐王水等級) |
| 五金配件 | 鋼製三節式鋼珠滑軌、緩衝式鉸鏈、硬質PVC 押出條型把手、4分螺桿耐重調整腳 |
| 線槽插座 | 厚1.0mm 鍍鋅鋼板機製成型,AC 110V-15A 插座、AC 220V-20A插座 |
| 照明裝置 | 依需求配置LED日光燈具組 |
| 水槽 | PP射出成型 735w*390d*315h大水槽,含落水頭及三元件 |
| 滴水架 | 內外雙層厚1.0 mm 彩鋅鋼板機製成型,PP射出成型晾乾棒39 支分長短兩種尺寸 |
| 龍頭 | 依需求配置銅製三口鵝頸龍頭或三口平行龍頭 |
| 洗眼器 | 活動式單口洗眼裝置,電鍍銅製外表Epoxy 烤漆 |
| 下櫃款式 | 單抽座位 | 單抽單門(左開or右開) | 單抽雙門 | 單門(左開or右開) | 雙門 | 水槽櫃(四門or雙門) | 三抽活動櫃 |
| 上櫃款式 | 門板壁櫃 | 門板玻璃壁櫃 | 玻璃壁櫃 | 玻璃滑門壁櫃 | 開放櫃 | 靠邊桌上型藥架 | 中央桌上型藥架 |
|
|
|
|
|
|
| |
| 水槽款式 | 黑色PP水槽 735*390*315 mm | 黑色PP水槽 500*400*300 mm | 黑色PP水槽 395*290*260 mm | 黑色PP小水槽 220*120*120 mm | 黑色PP小水槽 148*70*115 mm | SUS水槽訂製尺寸 | 白色PP水槽訂製尺寸 |
|
|
|
|
|
|
| |
| 龍頭款式 | 三口鵝頸龍頭 | 三口平行龍頭 | 雙口平行龍頭 | 單口鵝頸龍頭 | UPVC鵝頸龍頭 | PP鵝頸龍頭 | PVDF鵝頸龍頭 |
|
|
|
|
|
|
|























