靠邊實驗桌/桌上型鋼製藥架-鋼吊鋼-2400x750x825/2350 mm
靠邊型實驗桌(6) 鋼吊PP
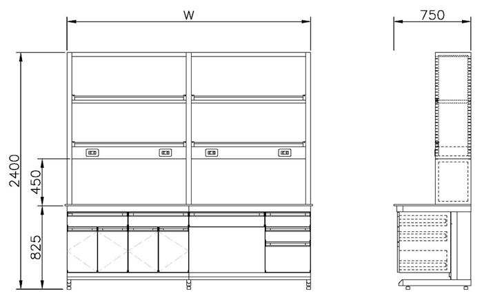
產品特性說明
- 結構堅固:整體框架及藥架皆採用粉體烤漆鋼構製成,提供良好的強度與耐久性,適用於各類實驗操作環境。
- 多功能下櫃設計:下方配置抽屜及開門式櫃體,提供充足儲物空間,櫃體採模組化設計,可依需求彈性調整配置。
- 開放式藥架:上方設有雙層開放式鋼製藥品層架,方便存放與拿取常用試劑與器材,亦具備電源插座配置,便於儀器使用。
- 高耐蝕工作台面:採用可耐王水等級的化學耐蝕板,具優異的耐酸鹼、耐溶劑與耐磨損特性,適用長時間操作。
- 電力配置完善:實驗桌背板預設多組電源插座,滿足電氣設備操作需求,提升實驗效率與便利性。
- 美觀與實用兼具:整體設計簡潔俐落,線條流暢,能有效提升實驗室整體空間整潔度與專業形象。
應用範圍
- 化學實驗室
- 醫學生物實驗室
- 製藥產線與研發中心
- 食品檢驗與品保實驗室
- 高中、大學及研究機構實驗室
- 材料分析與工程實驗空間
| 桌寬(mm) | 2400 | 3000 | 3600 | 4350 |
| 桌深(mm) | 750/900 | |||
| 桌高(mm) | 825/885(±3%) | |||
| 總高(mm) | 2200/2400 | |||
*尺寸皆可依需求設計製作
| 鋼骨架構 | 60*40*2.3mm 鋼管焊接成型鐵腳,Epoxy 靜電粉體烤漆 |
| 櫃體 | 厚0.8、1.0mm鍍鋅鋼板機製成型,Epoxy 靜電粉體烤漆 |
| 桌上型藥架 | 厚1.2mm 鍍鋅鋼板機製成型,Epoxy 靜電粉體烤漆 |
| 台面板 | 厚13mm±3%抗蝕實心化學板(可耐王水等級) |
| 五金配件 | 鋼製三節式鋼珠滑軌、緩衝式鉸鏈、硬質PVC 押出條型把手、4分螺桿耐重調整腳 |
| 線槽插座 | 厚1.0mm 鍍鋅鋼板機製成型,AC 110V-15A 插座、AC 220V-20A插座 |
| 照明裝置 | 依需求配置LED日光燈具組 |
| 下櫃款式 | 單抽座位 | 單抽單門(左開or右開) | 單抽雙門 | 單門(左開or右開) | 雙門 | 水槽櫃(四門or雙門) | 三抽活動櫃 |
| 上櫃款式 | 門板壁櫃 | 門板玻璃壁櫃 | 玻璃壁櫃 | 玻璃滑門壁櫃 | 開放櫃 | 靠邊桌上型藥架 | 中央桌上型藥架 |
|
|
|
|
|
|
| |
| 水槽款式 | 黑色PP水槽 735*390*315 mm | 黑色PP水槽 500*400*300 mm | 黑色PP水槽 395*290*260 mm | 黑色PP小水槽 220*120*120 mm | 黑色PP小水槽 148*70*115 mm | SUS水槽訂製尺寸 | 白色PP水槽訂製尺寸 |
|
|
|
|
|
|
| |
| 龍頭款式 | 三口鵝頸龍頭 | 三口平行龍頭 | 雙口平行龍頭 | 單口鵝頸龍頭 | UPVC鵝頸龍頭 | PP鵝頸龍頭 | PVDF鵝頸龍頭 |
|
|
|
|
|
|
|























