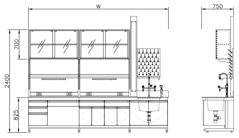
靠邊實驗水槽桌/倒吊玻璃壁櫃/鋼製藥架-鋼吊鋼-3340x750x825/2400 mm
靠邊型實驗桌(3)
產品特性說明
- 結構穩固:採用鋼製框架,具備高度耐用性與承載力,適合長期使用及重型儀器放置。
- 玻璃滑門壁櫃:上方壁櫃採用鋼製本體搭配玻璃滑門設計,可方便觀察與取用化學藥品或儀器,同時具防塵效果。
- 立柱式開放藥架:實驗桌中段設置可調式鋼製藥品層架,提供靈活的儲存與展示空間。
- 整合式洗手槽:一體成型抗化學材質水槽,搭配三口水龍頭與滴水架,便於清洗與實驗後處理。
- 多元櫃體配置:下方配置多組鋼製門櫃與抽屜櫃,可依使用需求更換為座位區、抽屜櫃或留空區域,靈活應變。
- 耐腐蝕桌面:採用與「可耐王水等級」同等級化學板桌面,具高度耐酸鹼與耐刮特性。
- 電力整合:藥架底部配置多組插座面板,便於電力分配與儀器供電,符合現代實驗室需求。
應用範圍
- 高校與研究機構之化學、生物、材料等實驗室
- 製藥、半導體與精密製造等產業研發部門
- 分析、檢測實驗室需整合水電、收納與操作功能之工作區
- 適用需頻繁清洗與觀察樣品之實驗作業環境
| 桌寬(mm) | 2400 | 3000 | 3600 | 4350 |
| 桌深(mm) | 750/900 | |||
| 桌高(mm) | 825/885(±3%) | |||
| 總高(mm) | 2200/2400 | |||
*尺寸皆可依需求設計製作
| 鋼骨架構 | 60*40*2.3mm 鋼管焊接成型,Epoxy 靜電粉體烤漆 |
| 鋼立柱 | 70*40*1.6mm 鍍鋅鋼板機製焊接成型,Epoxy 靜電粉體烤漆 |
| 櫃體 | 厚0.8、1.0mm鍍鋅鋼板機製成型,Epoxy 靜電粉體烤漆,壁櫃配合5mm強化玻璃 |
| 藥架 | 托架厚2.3mm鋼板、層板厚1.0mm 鍍鋅鋼板機製成型,Epoxy 靜電粉體烤漆 |
| 台面板 | 厚13mm±3%抗蝕實心化學板(可耐王水等級) |
| 五金配件 | 鋼製三節式鋼珠滑軌、緩衝式鉸鏈、硬質PVC 押出條型把手、4分螺桿耐重調整腳 |
| 線槽插座 | 厚1.0mm 鍍鋅鋼板機製成型,AC 110V-15A 插座、AC 220V-20A插座 |
| 照明裝置 | 依需求配置LED日光燈具組 |
| 水槽 | PP射出成型 735w*390d*315h大水槽,含落水頭及三元件 |
| 滴水架 | 內外雙層厚1.0 mm 彩鋅鋼板機製成型,PP 射出成型晾乾棒39 支分長短兩種尺寸 |
| 龍頭 | 依需求配置銅製三口鵝頸龍頭或三口平行龍頭 |
| 洗眼器 | 活動式單口洗眼裝置,電鍍銅製外表Epoxy 烤漆 |
| 下櫃款式 | 單抽座位 | 單抽單門(左開or右開) | 單抽雙門 | 單門(左開or右開) | 雙門 | 水槽櫃(四門or雙門) | 三抽活動櫃 |
| 上櫃款式 | 門板壁櫃 | 門板玻璃壁櫃 | 玻璃壁櫃 | 玻璃滑門壁櫃 | 開放櫃 | 靠邊桌上型藥架 | 中央桌上型藥架 |
|
|
|
|
|
|
| |
| 水槽款式 | 黑色PP水槽 735*390*315 mm | 黑色PP水槽 500*400*300 mm | 黑色PP水槽 395*290*260 mm | 黑色PP小水槽 220*120*120 mm | 黑色PP小水槽 148*70*115 mm | SUS水槽訂製尺寸 | 白色PP水槽訂製尺寸 |
|
|
|
|
|
|
| |
| 龍頭款式 | 三口鵝頸龍頭 | 三口平行龍頭 | 雙口平行龍頭 | 單口鵝頸龍頭 | UPVC鵝頸龍頭 | PP鵝頸龍頭 | PVDF鵝頸龍頭 |
|
|
|
|
|
|
|























